Neorama Söğütözü
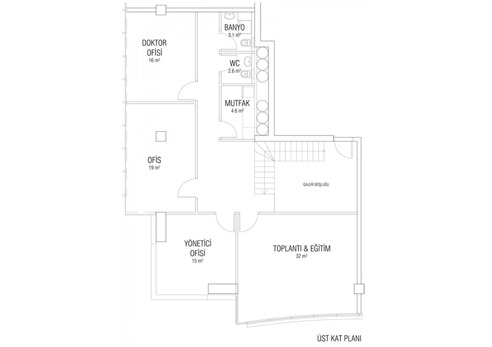
Neorama Söğütözü project, built by Yenikonak İnşaat, consists of a single 24-storey tower. The project includes 6 offices as well as 92 offices. In Neorama 1-13. 6 offices on each floor, 14-19. 4 offices on each floor, 20-22. There are duplex offices on the floors.
Neorama Söğütözü project's walking distance to the metro is only 400 meters. In the capital, the heart of the business world beats in Söğütözü. The Neorama Söğütözü project, which is designed for the comfort of the employees, has different office options. Offices, starting from 89 square meters, can be combined with a modular system. Optionally, 680 square meter office floor can also be purchased.
In Neorama Söğütözü, just behind Koç Towers, the rents of the smallest offices start from 4 thousand TL.
